Leave a Message

Thank you for your message. We will be in touch with you shortly.

Explore Our Properties

Property Description

An incredible opportunity in Cabo's premier private club community -- Querencia. With very limited new inventory, this nearly completed residence will be delivered fully finished by Q2 2026, offering the perfect alternative to a multi-year custom build.

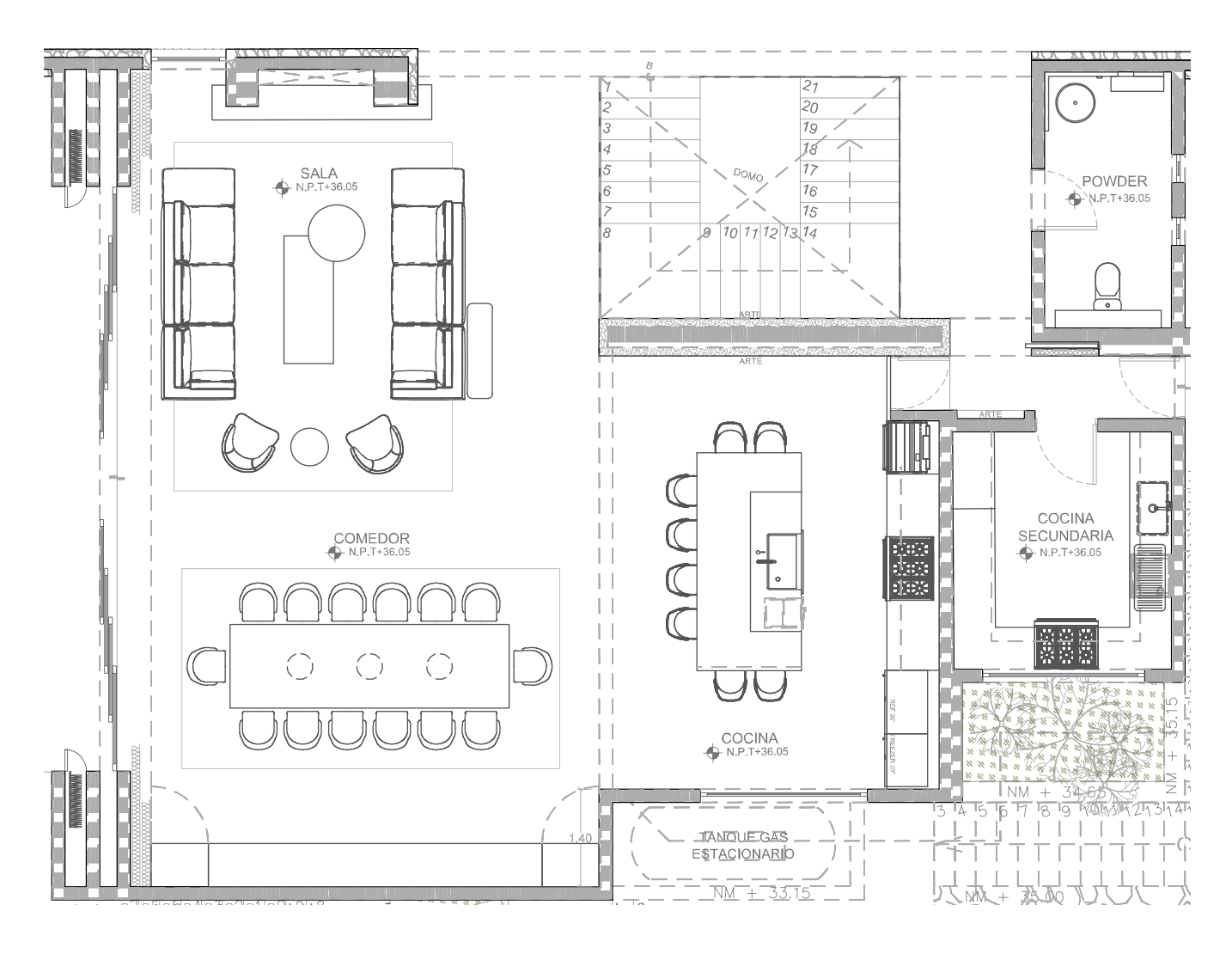
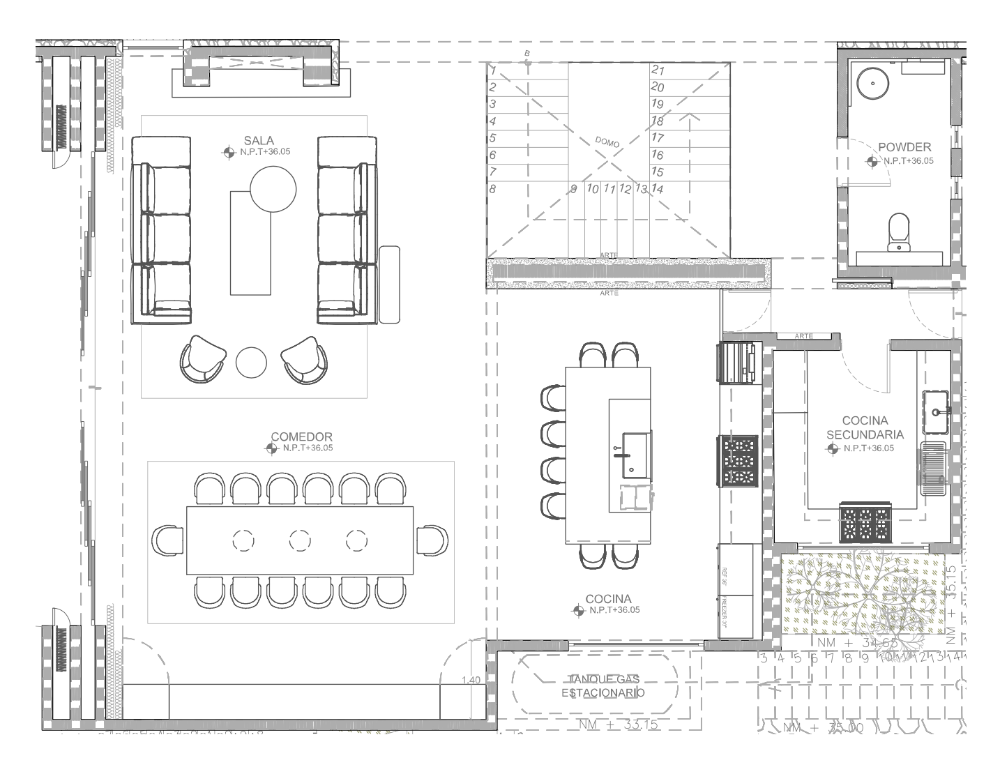
This private home includes a 4-bedroom main home plus a detached two-level, 3-bedroom casita, ideal for hosting family and guests. Situated on a quiet cul-de-sac with no through traffic, the property captures stunning south-southeast views of the Sea of Cortez.

Enjoy brand-new construction, privacy, and access to Querencia's world-class amenities--including golf, beach club, fitness, dining, and more. A rare chance to secure your Cabo home now and move in within months.

Overview

Property Status
For Sale
MLS ID
25-4682
Property Type
Residential
Year Built
2025

Features & Amenities

Total Area
8,780.16 Sq.Ft.
Architecture Styles
Contemporary
Pool
Pool
Appliances
Freezer, Clothes Washer, Clothes Dryer, Refrigerator, Oven, Microwave, Dishwasher, Wine Fridge
Other Interior Features
Handball/Paddleball, Gym
Security Features
Guarded
Other Exterior Features
Restaurants/Bars, Putting/Pitching, Golf, Beach Club, Fire Pit, BBQ Area
Sales Price
$6,495,000

Downloads

NEW CUSTOM HOME, Colinas 5, San Jose Corridor

Schedule a Tour

We would love to help you see this beautiful home! As a full-service brokerage, we can help you tour. Please submit an offer, and answer questions about the buying process.

Thank you

for your interest in NEW CUSTOM HOME, Colinas 5, San Jose Corridor, MX

NEW CUSTOM HOME, Colinas 5, San Jose Corridor
Navigate

NEW CUSTOM HOME, Colinas 5, San Jose Corridor

Featured Properties

For Sale

Get in Touch

.

Follow Us On Instagram